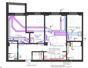
Разработка, проектирование, адаптация систем в сооружениях
Профессиональное выполнение проектных работ по вентсистемам с учетом всех тонкостей и нюансов
ПодробнееОбследование систем вентиляции, ремонт, обслуживание
Техническое обслуживание вентиляции, рекомендуется проводить планово и своевременно. Ведь именно своевременная профилактика вентиляции – залог долгой и эффективной работы систем.
ПодробнееУстройство приточной вентиляции
Приточная вентиляция — комплексная вентиляционная система, которая принудительно притягивает в помещение свежий воздух.
ПодробнееУстройство вытяжной вентиляции
Выполним профессиональную установку вытяжной системы вентиляции
ПодробнееУстройство приточно-вытяжной вентиляции с рекуперацией тепла
Монтаж приточно-вытяжной вентиляции требует профессиональной квалификации и должен выполняться узкоспециализированными подрядными организациями.
ПодробнееИнтегрирование увлажнения воздуха в систему и отдельные установки
Система вентиляции с увлажнением воздуха и осушением все чаще используется в повседневной жизни.
ПодробнееКондиционирование помещений
Профессионально произведем монтаж системы кондиционирования на объекте любого уровня сложности.
ПодробнееРазработка систем вентиляции в цокольных этажах, подвалах, офисных помещениях
Организуем выезд инженера, подберем эффективное решение для вашего офиса, склада, цокольного этажа и рассчитаем итоговую стоимость монтажа системы вентиляции
Подробнее








