Разработка, проектирование, адаптация систем в сооружениях
Разработка, проектирование, адаптация систем в сооружениях
Профессиональное выполнение проектных работ по вентсистемам с учетом всех тонкостей и нюансов
Заявка на расчет
Оставьте заявку на данной странице, и получите дополнительную скидку 10% на данную услугу.
- Описание
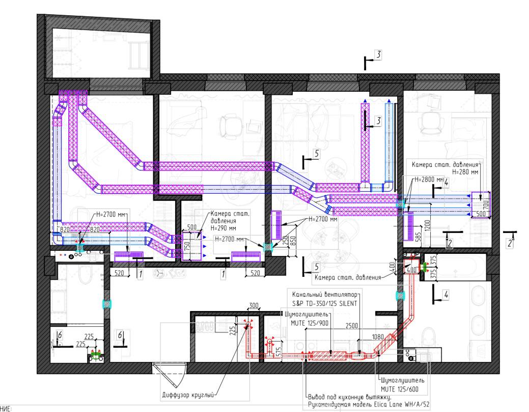
Разработка проектной документации необходима для обеспечения соответствия требованиям нормативной базы и определения оптимальных рабочих параметров вентсистемы. Если проект системы вентиляции не будет разработан, то значительно увеличивается возможность совершения ошибок на стадии монтажных работ. Эти возможные ошибки способны сильно повлиять на удобство пребывания людей в зданиях и качество функционирования технологического оборудования на промышленных Объектах.
Проектирование вентиляционных систем
- Подбор необходимых для комплектации Объекта материалов и оборудования
- Расчет количественных параметров вентиляторов, фильтров, шумоглушителей, воздуховодов, решеток, диффузоров и т.д.
- Разработка проектной документации в качестве основы для монтажа системы вентиляции
- Задание необходимой кратности воздухообмена в вентилируемых помещениях, исходя из их предназначения и требований нормативно-технических документов
- Разработка поэтажных и аксонометрических схем
- Обеспечение соответствия параметров системы проектируемой вентиляции требованиям нормативной базы
- Разработка информационной и документальной основы для дальнейшего (по завершении монтажных работ) составления Исполнительной документации (ИД)
Галерея

