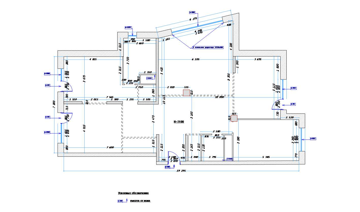
Обмеры помещения. Обмерный план
Обмеры помещения. Обмерный план
Обмерные работы – это комплекс действий, направленных на установление фактических размеров строительных конструкций и их элементов.
Заявка на расчет
Оставьте заявку на данной странице, и получите дополнительную скидку 10% на данную услугу.
- Описание
Каждый дизайн-проект начинается с обмерного плана помещения. От точности определения геометрических размеров зависит точность расстановки мебели и оборудования в квартире или доме.
Что такое обмерный план?
Обмерные план — вид чертёжной документации. Цель обмерных работ – определение действительных геометрических размеров помещений или конструкций.
Для изготовления обмерного плана тщательно измеряются высота и ширина каждой стены и параметры оконных и дверных проёмов. Кроме того, если работы проводятся в целом здании, а не в отдельном помещении, на чертёж наносятся планы каждого этажа и фасады здания. В обмерный план заносится расположение вентиляционных шахт, систем электроснабжения, водоснабжения и водоотведения, системы отопления и других имеющихся инженерных коммуникаций.
Для обмеров вам понадобятся точные измерительные инструменты. Обыкновенная универсальная рулетка – не подойдёт, т. к. имеет определённые погрешности, а это непременно отразится на качестве измерений.
Вы избежите ошибок, если доверите выполнение обмерных работ профессионалам, имеющим соответствующее образование и опыт. Желательно, если это сделают дизайнеры, которые в дальнейшем будут непосредственно заниматься разработкой дизайн-проекта.
На чертеже должно быть чётко обозначены несущие стены и перегородки. Любые неточности недопустимы. Представьте, что вы захотите навесить на стену полки для книг или другое навесное оборудование, а стена окажется обыкновенной перегородкой. Хорошо бы заранее знать, выдержит ли она необходимую нагрузку.
Что такое обмерный план?
Обмерные план — вид чертёжной документации. Цель обмерных работ – определение действительных геометрических размеров помещений или конструкций.
Для изготовления обмерного плана тщательно измеряются высота и ширина каждой стены и параметры оконных и дверных проёмов. Кроме того, если работы проводятся в целом здании, а не в отдельном помещении, на чертёж наносятся планы каждого этажа и фасады здания. В обмерный план заносится расположение вентиляционных шахт, систем электроснабжения, водоснабжения и водоотведения, системы отопления и других имеющихся инженерных коммуникаций.
Для обмеров вам понадобятся точные измерительные инструменты. Обыкновенная универсальная рулетка – не подойдёт, т. к. имеет определённые погрешности, а это непременно отразится на качестве измерений.
Вы избежите ошибок, если доверите выполнение обмерных работ профессионалам, имеющим соответствующее образование и опыт. Желательно, если это сделают дизайнеры, которые в дальнейшем будут непосредственно заниматься разработкой дизайн-проекта.
На чертеже должно быть чётко обозначены несущие стены и перегородки. Любые неточности недопустимы. Представьте, что вы захотите навесить на стену полки для книг или другое навесное оборудование, а стена окажется обыкновенной перегородкой. Хорошо бы заранее знать, выдержит ли она необходимую нагрузку.

